關於我們
關於宸舍
設計團隊
責任施作
環保綠建材
作品實錄
住宅空間
公寓大樓
商辦空間
公共空間
校園空間
影片賞析
得獎紀錄
服務流程
設計施作流程
收費標準
聯絡我們
我的帳號
關於我們
關於宸舍
設計團隊
責任施作
環保綠建材
作品實錄
住宅空間
公寓大樓
商辦空間
公共空間
校園空間
影片賞析
得獎紀錄
服務流程
設計施作流程
收費標準
聯絡我們
關閉
木光築境
首頁
/
作品實錄
/
住宅空間
/
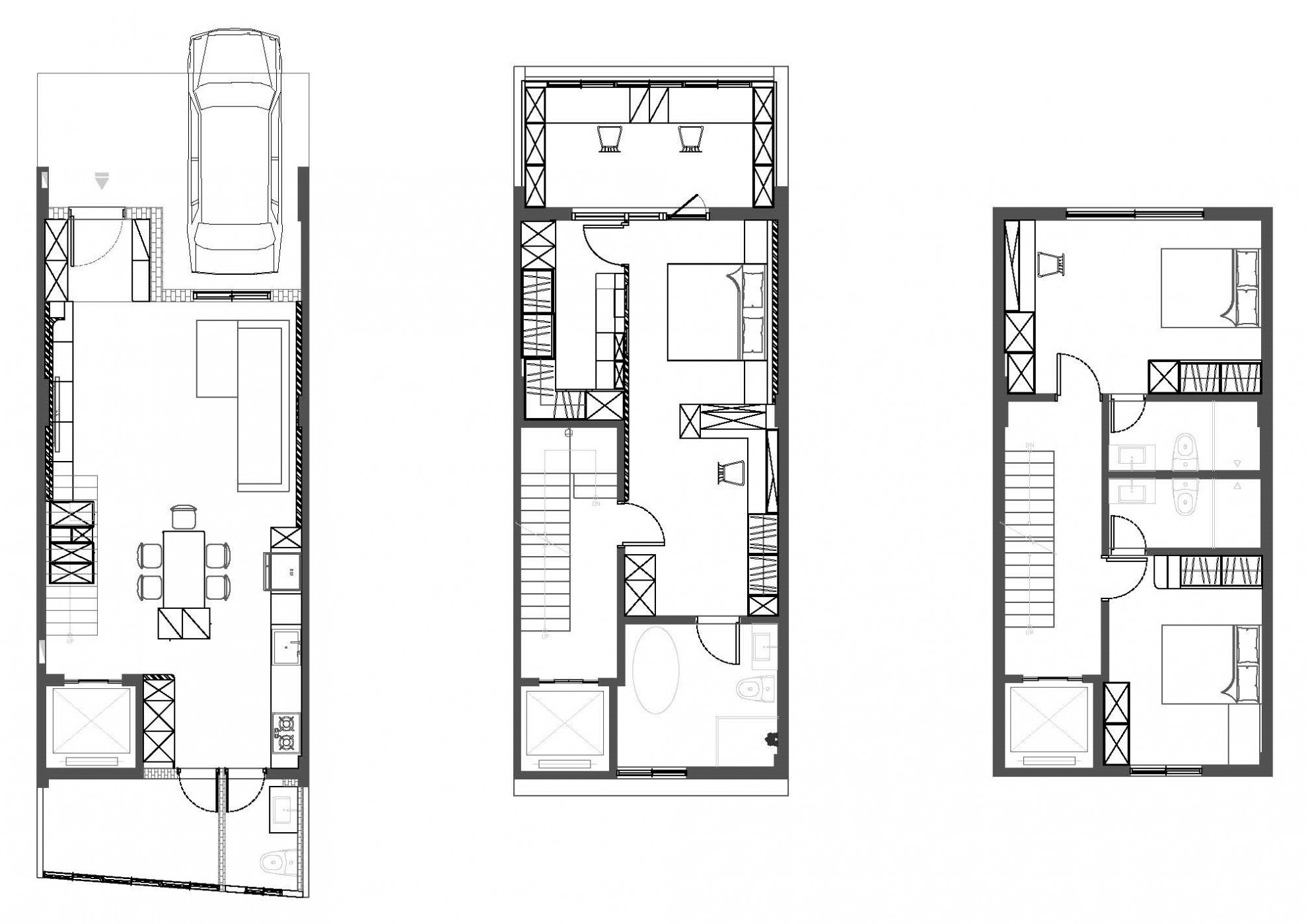
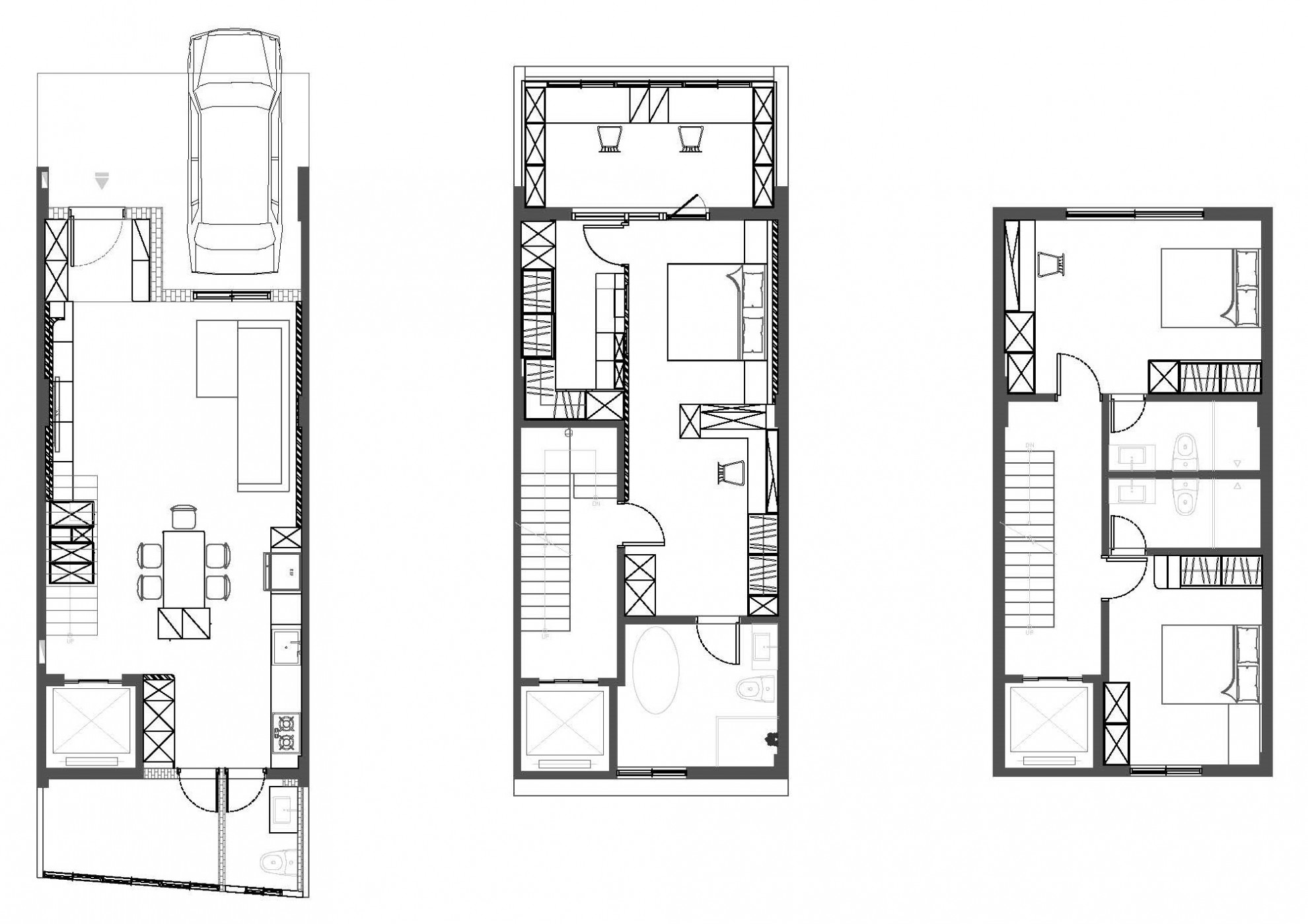
木光築境
供應情形:
有現貨
型號:
1140709
引光入室、以木為韻
類型|新成屋 / 透天住宅
坪數|70坪
地點|新竹縣新豐鄉
細節
輕盈的藍灰色沙發與溫潤木地板相互呼應,為生活注入舒適的節奏感。
樓梯下方量身打造收納櫃體,實現機能與美觀的極致融合。
無阻礙的餐廚一體化設計,放大空間視覺,讓採光與空氣自由流動。
結合自然木質與柔和燈光,營造出一個讓人安心的靜謐空間。
這裡不是只是居所
而是一種生活態度——在溫暖中沉靜,在靜謐中重拾日常的美好。